Летняя кухня с барбекю и печью — это удобное место для приготовления пищи на свежем воздухе и для встреч с семьей и друзьями. В статье рассмотрим проекты летних кухонь с кирпичным мангалом, их особенности, преимущества и недостатки открытых и закрытых конструкций. Узнаете, как спроектировать летнюю кухню, чтобы она была функциональной и эстетически привлекательной на вашем загородном участке.
Какими бывают летние кухни
Дизайнеры создали разнообразные проекты для загородного отдыха. Чтобы выбрать наилучший вариант, который будет соответствовать вашему участку и финансовым возможностям, давайте рассмотрим наиболее популярные типы летних домиков.
При проектировании летней кухни с барбекю и печью эксперты рекомендуют учитывать несколько ключевых аспектов. Во-первых, важно правильно выбрать место для размещения кухни, чтобы она была защищена от ветра и дождя, но при этом хорошо проветривалась. Оптимальным решением станет расположение вблизи дома, что обеспечит удобный доступ к основным коммуникациям.
Во-вторых, следует обратить внимание на материалы. Использование огнеупорных и влагостойких материалов, таких как кирпич или камень, значительно увеличит долговечность конструкции. Также стоит предусмотреть наличие крыши, чтобы защитить оборудование от неблагоприятных погодных условий.
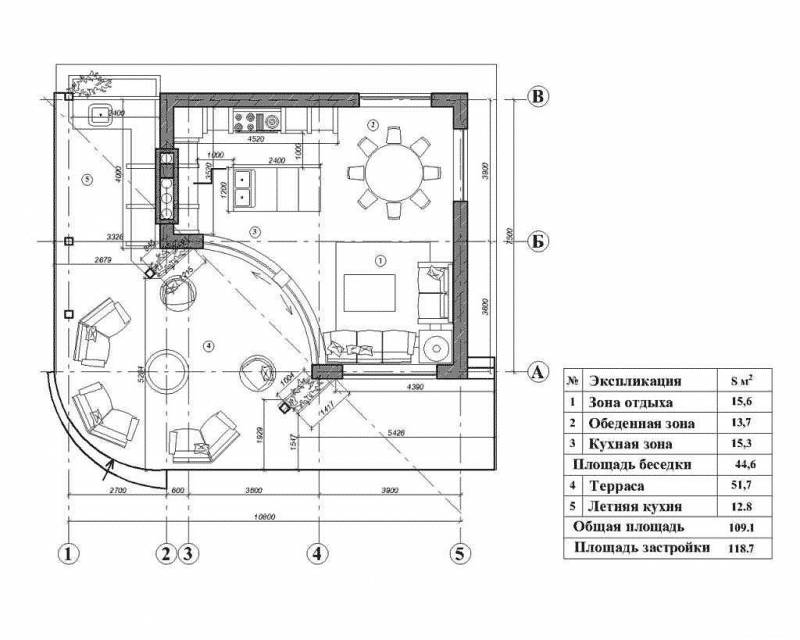
Кроме того, эксперты советуют продумать функциональное зонирование пространства. Удобно выделить зоны для приготовления пищи, отдыха и трапезы, что создаст комфортную атмосферу для семейных встреч и дружеских посиделок. Наконец, не забудьте о освещении и декоре, которые добавят уют и стиль в летнюю кухню.

Закрытая кухня
Это капитальное, отдельно стоящее или пристроенное крытое строение с возможностью круглогодичного отапливания, утепленное и застекленное. Гриль-хаус — это полноценный домик с кухней, столовой, а иногда и комнатой отдыха. Здесь можно круглый год устраивать пикники и праздники – вашим планам не помешает плохая погода и холод. Деревянная летняя кухня — прекрасный вариант для дачи в любой сезон.
Если к дому подведено электричество, можно оборудовать полноценную современную кухню со всеми бытовыми приборами. Если вам больше по душе ретро, центром такого дома станет русская печь. Отопление на дровах прогреет каменное или кирпичное строение даже в сильные морозы.
Закрытая летняя кухня — это полноценная постройка, которая требует серьезных денежных вложений. В жаркие летние дни готовить и трапезничать в закрытом помещении не особенно комфортно.
| Элемент летней кухни | Характеристики/Материалы | Замечания/Рекомендации |
|---|---|---|
| Барбекю | Чугун, нержавеющая сталь, кирпич | Учитывайте размер и тип топлива (уголь, газ, дрова). Обязательна дымоходная труба. |
| Печь | Кирпич, металл (с жаропрочной эмалью) | Выбор типа печи (русская печь, тандыр, печь-барбекю) зависит от ваших кулинарных предпочтений и бюджета. |
| Рабочая поверхность | Камень, нержавеющая сталь, керамическая плитка | Должна быть устойчива к высоким температурам и влаге. |
| Мойка | Нержавеющая сталь | Удобное расположение относительно источника воды и канализации. |
| Хранение дров | Металлический ящик, сарайчик | Обеспечьте сухость и безопасность хранения. |
| Стол | Дерево, металл, камень | Учитывайте размер и количество посадочных мест. |
| Крыша | Металлочерепица, поликарбонат | Защита от дождя и солнца. |
| Освещение | Светодиодные светильники, фонари | Обеспечьте достаточное освещение для вечернего использования. |
| Вентиляция | Каминная труба, вытяжка | Необходима для удаления дыма и копоти. |
| Пол | Плитка, бетон | Устойчивый к влаге и высоким температурам. |
Интересные факты
Вот несколько интересных фактов, связанных с проектированием летней кухни с барбекю и печью:
-
Энергоэффективность: Летние кухни с барбекю и печью могут быть спроектированы с учетом энергоэффективности. Использование натуральных материалов, таких как камень и дерево, помогает поддерживать оптимальную температуру, а также снижает потребление энергии для обогрева или охлаждения пространства.
-
Многофункциональность: Современные летние кухни могут включать не только барбекю и печь, но и дополнительные элементы, такие как мойка, холодильник, гриль и даже мини-бар. Это позволяет создать полноценное пространство для отдыха и приготовления пищи, что делает его идеальным для семейных встреч и праздников.
-
Интеграция с природой: При проектировании летней кухни важно учитывать окружающий ландшафт. Использование больших окон или раздвижных дверей позволяет создать ощущение единства с природой, а также обеспечивает естественное освещение и вентиляцию. Это делает пространство более комфортным и привлекательным для использования в теплое время года.

Открытая кухня
Каркасная конструкция, не имеющая утепления и зачастую лишенная стен и крыши, проектируется не всегда. Этот вариант предназначен исключительно для теплого времени года. Это экономичный и доступный проект для летней кухни с барбекю, открытой верандой, зеленой обеденной террасой или уютным патио. Даже простой навес или беседка могут быть легко адаптированы для летнего приготовления пищи и приема гостей. Для хозяек, занимающихся заготовками на зиму, открытая летняя кухня станет любимым местом для работы.
Пристроить такую кухню проще, дешевле и удобнее. Современные материалы позволяют создать привлекательный дизайн даже для открытого помещения, важно лишь правильно их выбрать.
Недостатком такой постройки является то, что в холодное время года ее использование невозможно. Зимой придется убирать всю технику в дом и закрывать веранду до весны, либо использовать это пространство для хранения садового инвентаря. Мебель также необходимо защищать от ветра, дождя и снега, занося в дом или накрывая чехлами.
Комбинированная кухня
Совмещает достоинства первых двух вариантов. Сочетает в одном проекте и открытую веранду, и закрытое теплое помещение. К этому типу относятся и летние кухни, пристроенные к бане. Это прекрасный вариант на все сезоны и случаи жизни. Однако проектировать такое помещение сложно и затратно.

Материал изготовления
Выбор строительных материалов для возведения летней кухни зависит от вашего бюджета, предпочтений и ожидаемого срока эксплуатации. В магазинах стройматериалов представлено множество вариантов, что позволяет легко найти оптимальное соотношение цены и качества. Кроме того, дорогие материалы можно успешно сочетать с более доступными.
Для создания каркаса летней кухни чаще всего используют кирпич, дерево и камень. Бетон, поликарбонат, профнастил, вагонка и алюминий применяются реже.
Давайте подробнее рассмотрим, чем лучше обшить летнюю кухню на даче:
- Кирпич. Этот материал является доступным, распространенным и надежным для строительства. Кладка не требует профессиональных навыков, а кирпичный дом обойдется относительно недорого и прослужит долго. Если ваш участок окружен кирпичным забором, то и летнюю кухню лучше построить из того же материала. Кирпич не боится неблагоприятных погодных условий и прослужит не один десяток лет.
- Камень. Для облицовки внешнего каркаса здания рекомендуется использовать искусственный камень. Он прочнее натурального, более устойчив к износу и легче в работе. Искусственный камень легко укладывается на деревянные, гипсокартонные и бетонные поверхности. Внешне он практически не отличается от натурального, но служит дольше. Доступно множество цветовых решений.
- Дерево. Летняя кухня из деревянного бруса — это более простой и экономичный вариант крытого домика или открытой веранды. Однако дерево требует специальной обработки и постоянного ухода. Наиболее практичными считаются сосновый и еловый брус. Летняя кухня из сосны отличается хорошей теплоизоляцией, воздухопроводимостью и привлекательным внешним видом. В таком домике летом будет прохладно, а зимой тепло. Дерево «дышит», позволяя наслаждаться лесным ароматом.
Не менее важно правильно выбрать материалы для крыши. На кровлю ложится максимальная нагрузка от ветра, дождя и снега. Крыша закрытой кухни должна быть особенно надежной. Кроме полноценной кровли, существуют и более легкие варианты для открытых пространств: деревянный навес с поликарбонатным покрытием или передвижной зонтик с прочным основанием и прозрачной крышей.
Для кровельного покрытия летних домиков используют:
- Профилированный лист (профнастил). Это металлический лист из оцинкованной стали, который при производстве получает определенную форму для повышения жесткости. Обеспечивает надежную и прочную кровлю.
- Битумная черепица (мягкая кровля). Этот технологичный материал на основе стеклохолста содержит модифицированный битум и каменную крошку. Основные преимущества — почти нулевое водопоглощение и возможность покрытия крыш любой сложности.
- Металлочерепица. Это тонколистовая сталь с полимерным защитным слоем. Внешне она напоминает керамическую черепицу, но гораздо прочнее и долговечнее. Подходит для любых климатических условий.
Следующий этап — выбор материала для пола. Он должен быть теплым, красивым, долговечным и устойчивым к влаге и грибку.
Для этого используют:
- Паркет. Деревянное покрытие, уложенное методом набора. Дощечки разных пород дерева формируют рисунок или орнамент. Существуют штучный, щитовой и наборный паркет. Это дорогой и роскошный вариант.
- Ламинат. Материал на основе ДВП, покрытый пленками из термореактивных полимеров. Это самый прочный и долговечный пол.
- Линолеум. Рулонное покрытие, изготовленное из окисленного льняного масла, сосновой смолы и древесной крошки. Современный полимер, мягкий и теплый.
- Декоративная плитка. Изготавливается из обожженной глины со стеклянным покрытием. Это износостойкий, распространенный и доступный материал.
Не забывайте о внешнем дизайне вашего садового участка. Уложите дорожки из гравия или брусчатки, продумайте расположение цветников, садовых деревьев и ягодных кустарников.
После выбора материалов для строительства стоит подумать и о внутренней отделке. Не только каркас здания должен быть прочным, но и мебель:
- Дерево. Уютный и классический деревенский стиль. Деревянные шкафы требуют ежегодного обновления защитными средствами от воздействия окружающей среды.
- Нержавеющая сталь. Долговечная мебель, устойчивая к природным катаклизмам. Урбанистический дизайн, который отлично сочетается с современной бытовой техникой.
- ПВХ. Пластиковые панели для отделки мебели устойчивы к любым температурам, пожароустойчивы и влагонепроницаемы. Широкий выбор цветовых решений позволяет имитировать любой природный материал, а уход за пластиком требует меньше усилий.
Покрытие столешниц — важный аспект в проектировании летней кухни с барбекю и печью. Это место для приготовления пищи, часто на открытом огне и воздухе.
Столешницы должны быть практичными и прочными:
- Искусственный камень. Устойчив к неблагоприятным погодным условиям, прост в уходе, долговечен и надежен. Не боится механических повреждений, коррозии и плесени. Имеет стильный и привлекательный дизайн.
- Бетон. Лаконичное и доступное покрытие. Бетон заливают по инструкции, а в процессе эксплуатации периодически обрабатывают для защиты от разрушения.
- Керамическая плитка. Экономичный и доступный для самостоятельного монтажа материал. Широкий выбор расцветок позволяет создать любой стиль и дизайн.
Освещение в доме и на открытой террасе лучше продумать заранее. На рынке представлено множество напольных и подвесных светильников, светодиодных лент и ламп различной мощности и размеров.
Планировка и расположение
Первый этап возведения летней кухни на участке — выбор месторасположения. Чтобы результат оказался максимально практичным и долговременным, сделайте несколько важных замеров:
- Перед укладкой фундамента учтите все рельефные особенности участка. Уровень и расположение грунтовых вод особенно важен.
- Проектируя пристройку или открытую веранду, не забудьте продумать расстояние до основной конструкции. Если она будет слишком близко, то дым от печи или мангала попадет в дом.
- Пожарная безопасность требует, чтобы легковоспламеняющиеся предметы находились на расстоянии 10 м от открытого огня.
- Грамотно распланируйте подвод коммуникаций. Лучше всего заранее обсудить подведение водопровода, отопления и канализации со специалистами.
- Если вы строите летнюю кухню на участке частного дома и у вас есть хозяйство, разместите постройку подальше от животных.
- Силу ветра и осадков также необходимо учесть до начала возведения наружного каркаса здания.
- Деревья, растущие поблизости от летней веранды, обеспечат тень и прохладу в жаркие дни.
Исходя из размеров участка и вашего бюджета, выберите передвижную мини-кухню, каркасную или встроенную:
- Передвижная кухня состоит из портативного мангала, мобильного столика с полками и светильника на аккумуляторах.
- Каркасная собирается из деревянного бруса или металлического профиля и обшивается гипсокартоном. Устанавливается на готовой площадке в качестве пристройки. Декорируется плиткой или штукатуркой.
- Встроенная летняя кухня — полноценный дачный дом с коммуникациями и мебелью.
Есть несколько типов планировки внутреннего устройства летнего домика. Это следующий этап после определения максимально удобного и правильного места для постройки. Различают планировки:
- линейная — бюджетный вариант, где зона для готовки и обеденная зона находятся отдельно;
- угловая — более просторная, включает в себя раковину, холодильник и барную стойку;
- п-образная — для закрытой кухни, предусматривает полный набор бытовой техники и просторную рабочую поверхность;
- остров — поднятые части столешниц отделяют зону готовки от барной стойки и обеденной зоны, центр приготовления пищи и общения.
Выбор стиля
Летняя кухня — это ваше второе жилище, созданное для комфорта и удовольствия. Стиль оформления такого пространства зависит исключительно от ваших предпочтений. Рассмотрим наиболее востребованные варианты дизайна летних домов:
- Классический стиль предпочитает натуральные, природные материалы. Сочетание камня, дерева и кирпича — это основа классики. Цоколь, отделанный камнем, каркас из деревянного бруса и кирпичные стены создают гармонию. Здесь отлично будет смотреться мебель в ретро-стиле: буфеты и комоды. Дровяная печь и подвесные светильники перенесут ваших гостей в атмосферу волшебства.
- Современный стиль акцентирует внимание на урбанистических элементах, таких как четкие линии и гладкие, практичные поверхности. Современная бытовая техника, оригинальные дизайнерские решения для дачной мебели и освещения — и вы окажетесь в мире будущего.
- Рустик. Матовые текстуры и палитры естественных оттенков делают этот стиль особенно уютным. Его главная особенность — легкость во всем. Здесь есть простор для креативности дизайнера. Мебель с декупажем, мозаичные элементы и фонтанчики прекрасно дополнят общий стиль сада. Тщательно подобранные украшения и цветы создадут атмосферу сказки для ваших близких.
Печи для летней кухни
Современные производители выпускают широкий ассортимент разнообразных моделей печей. Помимо функциональности, значение имеет дизайн изделия. А по индивидуальному заказу мастера сделают неповторимый мангал, который удивит гостей и порадует семью.
Рассмотрим самые востребованные виды печей для летней кухни:
- Русская печь. В XXI веке эту королеву дома строят нечасто. Для такой печи требуется много пространства. А еще понадобится опытный мастер-печник. Русская печь на дровах отапливает дом, позволяет готовить любые блюда, запекать пироги в самой печи. Надежная, добрая, проверенная временем конструкция.
- Мангал. Используется для жарки продуктов на шампурах. Мангалы бывают передвижные и стационарные. Переносной мангал мобилен и прост в эксплуатации, его используют на веранде и в летнем доме на кухне. Стационарный мангал массивен и требует профессиональной установки. Для максимальной практичности рекомендуется сразу пристроить к нему раковину, зольник и прочный стол.
- Барбекю. Стационарная печь, оснащенная вытяжкой и задней панелью. Позволяет жарить мясо, овощи и рыбу на решетке.
- Печь-камин. Проектируется в закрытых летних кухнях в качестве декоративного элемента. Камин служит для создания уюта и отапливает комнату в зимнее время.
- Коптильня. Своеобразная пристройка к основной печке. Ниша или труба, через которую пропускается дым для приготовления продуктов холодного или горячего копчения.
Не забывайте об опасности открытого огня, следите за ним и вовремя тушите. Простые правила пожарной безопасности защитят вас и ваше имущество.
Варианты проектов летних кухонь с барбекю
Мы предлагаем различные варианты летних кухонь «под ключ».
Закрытая летняя кухня
Открытая летняя кухня
Комбинированная летняя кухня, объединенная с баней
Заключение
Летняя кухня на дачном или садовом участке станет замечательным местом отдыха. Грамотно составленный проект и правильно подобранные материалы помогут создать любимое место на долгие годы.
Даже в случае финансовых затруднений не стоит отказываться от мечты построить красивый уголок для своей семьи. Всегда можно проявить смекалку и закупить материалы по сниженной цене: из уцененного боя керамической плитки сотворить неповторимые мозаики, а старую мебель, купленную за бесценок, отремонтировать, отреставрировать и подарить ей новую жизнь. Воображение и трудолюбие творят настоящие чудеса.
Освещение и электрика
При проектировании летней кухни с барбекю и печью особое внимание следует уделить освещению и электрике. Эти элементы не только обеспечивают комфорт и безопасность, но и создают атмосферу, способствующую приятному времяпрепровождению на свежем воздухе.
Типы освещения
Существует несколько типов освещения, которые можно использовать в летней кухне:
- Общее освещение: Оно должно быть равномерным и достаточно ярким для выполнения различных задач, таких как приготовление пищи и уборка. Для этого подойдут потолочные светильники или встроенные светодиоды.
- Рабочее освещение: Важно обеспечить дополнительное освещение в зонах, где происходит приготовление пищи. Это могут быть настенные светильники или светильники с регулируемым направлением света, которые можно установить над рабочими поверхностями.
- Декоративное освещение: Для создания уютной атмосферы можно использовать светильники с мягким светом, такие как торшеры, настенные бра или гирлянды. Они помогут создать романтическую обстановку для вечерних встреч.
Выбор источников света
При выборе источников света стоит учитывать их энергоэффективность и долговечность. Светодиоды (LED) являются отличным вариантом, так как они потребляют меньше энергии и имеют длительный срок службы. Кроме того, они доступны в различных цветовых температурах, что позволяет создать нужное настроение.
Электропроводка
Правильная электропроводка — это залог безопасности и функциональности летней кухни. Необходимо учитывать следующие моменты:
- Все электропроводки должны быть выполнены с учетом внешних условий: используйте кабели с защитой от влаги и ультрафиолетового излучения.
- Рекомендуется прокладывать проводку в защищенных каналах или трубах, чтобы избежать повреждений.
- Необходимо предусмотреть достаточное количество розеток для подключения кухонной техники и освещения. Розетки должны быть установлены на высоте, недоступной для влаги.
Безопасность
Безопасность — это ключевой аспект при проектировании электрики в летней кухне. Установите автоматические выключатели и устройства защитного отключения (УЗО), чтобы предотвратить короткие замыкания и защитить от поражения электрическим током. Также стоит предусмотреть наличие огнетушителя в непосредственной близости от зоны приготовления пищи.
Планирование освещения
Перед установкой освещения важно составить план, который учитывает расположение всех зон: рабочей, обеденной и отдыха. Это поможет определить, где и какие источники света будут наиболее эффективными. Также стоит учесть возможность установки диммеров для регулировки яркости света в зависимости от времени суток и настроения.
В заключение, правильное освещение и электрика играют важную роль в создании комфортной и безопасной летней кухни. Тщательное планирование и выбор качественных материалов помогут обеспечить долговечность и функциональность всех систем.
Вопрос-ответ
Из чего дешевле построить летнюю кухню?
Обычно в целях экономии его делают холодным, без утепления и отопления. В этом случае можно использовать любые строительные материалы: дерево, газобетон, кирпич — те, что подходят к стилю основного дома. Иногда летнюю кухню размещают в уже имеющейся на участке постройке.
Можно ли использовать обычный гриль на летней кухне?
Зависит от обстоятельств. Необходимо обеспечить определённые воздушные потоки, включая отвод воздуха от поддона для сбора жира к задней крышке гриля. Если эти потоки закрыты, это может повлиять на производительность или на нагрев гриля.
Советы
СОВЕТ №1
При проектировании летней кухни с барбекю и печью, обязательно учитывайте расположение относительно солнца и ветра. Лучше всего, если кухня будет находиться в тени, чтобы избежать перегрева в жаркие дни, а также защищена от сильных ветров, чтобы дым от барбекю не мешал вам и вашим гостям.
СОВЕТ №2
Выбирайте качественные и устойчивые к погодным условиям материалы для строительства летней кухни. Например, камень, кирпич или нержавеющая сталь отлично подойдут для барбекю и печи, так как они долговечны и легко очищаются. Также не забудьте про защитные покрытия для деревянных элементов.
СОВЕТ №3
Обеспечьте достаточное количество рабочей поверхности и места для хранения. Удобные столы и полки помогут вам организовать процесс приготовления пищи и сервировки. Рассмотрите возможность установки встроенных шкафов или открытых полок для хранения посуды и кухонных принадлежностей.
СОВЕТ №4
Не забывайте о зонировании пространства. Создайте отдельные зоны для приготовления пищи, отдыха и трапезы. Это поможет сделать вашу летнюю кухню более функциональной и комфортной для использования как в одиночку, так и в компании друзей и семьи.





